{1}
##LOC[OK]##
{1}
##LOC[OK]##
##LOC[Cancel]##
{1}
##LOC[OK]##
##LOC[Cancel]##
×
×
切换地区
萧县
灵璧
砀山
泗县
访客数量已超200多万!
设为首页
|
加入收藏
今天多云转晴,-4℃~6℃ 风力<3级转3-4级 明天晴,-3℃~8℃, 风力3-4级
广告
广告
招聘
求职
房产买卖
房产租赁
交友征婚
购物广场
生活服务
车辆市场
教育培训
招商合作
公告祝语
发布信息
编号:
5319678
地区:
埇桥区
标题:
环宇国际广场办公场地出租
类别:
招商合作 >>
门面出租/生意转让
点击:
222
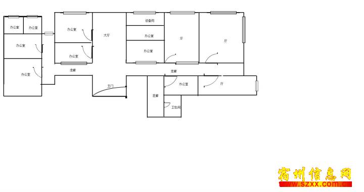
环宇国际广场办公场地出租
宿州埇桥人民路,
宿州埇桥
近银河一路。53
近银河一
2平方,适合办公
2平方,
。7室5厅。13
。7室5
000元/月。
联 系 人:
马先生
发布/刷新时间:
2025-10-31 17:28
离过期还有:
3天4时34分
15655799744
(联系时请首先说明您是从宿州信息网看到本信息的)
提示
15655799744
经过真实性验证,属于宿州-联通号段。
宿州信息网安全提示:
本信息发布于宿州本地网络。
本信息被举报投诉次数:
0
我要举报此信息
点这里查看宿州信息网总结的诈骗信息(2013)
点这里查看分类信息常见问题和解答
在宿州哪里可以考取电焊证
2元
哪里能找个会种蘑菇的技术人员
1元
鞋城附近有做工作餐的吗,长期稳定的可以留言
有想干生态散养的么?有三十多亩山地出租,设备齐全
1元
可有知道宿州市区哪里有修空调外机主板的
1元
本人想学手把焊 二保焊 氩弧焊之类的有没有师傅
1元
直播宿州办公室在哪里
2元
本人用小吃三轮车摆摊想找个摊位收费也可,或人流量大的夜市有大神推荐一下
5元
宿州市哪里有卖老式腌菜坛子的?
虚线哪里有卖正宗麦芽糖的?
1元
信息发布者快捷操作:
留言簿
(共有0条留言)
给信息发布者留言咨询
[
信息发布者不一定会回复您的留言咨询
]
您的称呼:
* 必填项,显示您的称呼
手机号码:
* 必填项,您的手机号码
,只有本信息的发布人才会看到
留言咨询内容最多允许100个字
提示:本信息发布者发布本信息的时候选择了开放留言簿。
宿州信息网导航
招聘
求职
房产买卖
房产租赁
交友征婚
购物广场
生活服务
车辆市场
教育培训
招商合作
公告祝语
交友中心
网上店铺
宿州
知
道
民意调查
网站首页
天气预报
楼盘地图
火车时刻表
飞机时刻表
公交线路
宿州地图
常用电话
邮编区号
福利彩票
违章车辆
姓名测算
万年历
您还没有登录信息网
申请职位
请核对申请的职位,并点“确定申请”按钮。您的简历会被发送给该招聘单位。
招聘单位:
申请职位:
select
请选择申请职位
附加留言:
select
希望能到贵单位工作!
我很喜欢贵单位的工作氛围!
我对这个职位很感兴趣!
我完全胜任这个工作!
请多看一下我的简历哦!
我虽然经验不足,但是很愿意学习!
我虽然没有完全符合应聘要求,但是愿意努力赶上!
(不是必须填的)
本人手机号码:
如需修改手机号码或简历内容
点击这里
推荐信息(广告)
审核员(做五休二)+五险
不想做客服的看过来(双休+带薪刷视屏) 4000-6000元/月;纯打字岗,市中心+8小时+工资稳定 4000-8000元/月; ......
酒店按天、按周、按月出租(
酒店按天、按周、按月出租(住多久都可以) 电话:18956197808(微信同号) 尊敬的租客您好:我是房东,首先真诚的 ......
【官方直招】UU招募自由骑手
宿州UU跑腿急招自由接单员!时间自选×日结×官方直招 国家大数据试点项目 | 230城覆盖 | 850万骑手 ......
低价疏通下水道,水电维修,
疏通下水道,马桶,地漏,菜盆。水电维修,取断丝,换三角阀,水龙头,修太阳能,瓦工砸墙,批腻子,专修房顶漏 ......
底薪3500+八小时+工作轻松+
一、招聘说明: 1、主要岗位:客户顾问 2、岗位职责:开发及维护客户 3、上班时间:上午8:30-12:00下午14:00-18:3 ......
吾悦合租房出租
吾悦对面西苑新村合租房出租 价格300元-700元房间不同价格不同 房价配置齐全拎包入住 房租付款方式灵活
首钢首御3-308室,三楼东头
首钢首御3号楼二单元308室,110平方,三室一厅一厨一卫,精装,拎包入住,年租10000元(不包物业),有意者电 ......
运营招聘
公司主要负责平台:B站 运营,每日负责对接、开发、新主播孵化培训,新老主播调整、复盘沟通以及教新、拉新、做 ......
低价出售体检卡
低价出售宿州美康体检中心体检卡,提供免费咨询服务,套餐卡,储值卡均有,满足各类年龄需求。 专业的机构,优 ......
5K+五险招聘图片设计策划
剪辑策划 4000-5000元/月; 西昌南路皖北煤电0117室
宿搬家公司 回收冰箱洗衣机
宿州搬家公司 搬家 公司搬迁 店铺搬迁 单位搬迁 家具拆装 长短途搬家 跨省搬家 回收 二手旧货 民用家具家电办 ......
爆品销售
男士延时喷剂,亲测不麻 好拼如潮!让你重振男人的雄风 女性快感增强液,三重快感一触即发!双向奔赴,双重BU ......
广告
广告
版权所有 ©2006 - 2020 宿州信息网 www.szxx.com.cn
-- 宿州超人气门户网站
招聘
求职
房屋买卖
房屋租赁
购物广场
生活服务
门面商铺
车辆市场
交友征婚
教育培训
招商加盟
公告祝语
交友中心
宿州知道
“宿州信息网”是百度在宿州地区超人气的搜索关键词!
查看宿州信息网的世界排名
官方微信:
宿州信息网宏洋服务
APP下载
轻松加入微信
1.打开微信
2.点击底部菜单“发现”
3.选择“扫一扫”功能
4.对准左方二维码扫码
5.点击出现的绿色按钮“关注”
公众号:
宿州信息网宏洋服务
常见问题回答
联系我们
广告业务:0557-3905363
安徽省宿州市宏洋网络信息服务有限公司
地址:宿州汴河路华夏世贸2620室
公司简介
营业执照
《中华人民共和国工信部ICP备案》编号:
皖B2-20190089-2
皖公网安备 34130002000723号
开设涉互联网算法推荐专项举报,举报邮箱:szwljb#163_com